星空网上网络大全

明杆软密封闸阀

产品型号:Z41T
公称通径:DN50-600 mm
公称压力:PN1.0MPa
适用温度:≤200℃
适用介质:水、蒸汽、油品
阀体材质:灰铸铁等
连接形式:法兰
设计规范:GB/T 12234
结构长度:GB/T 12221
连接法兰:JB/T 79


 Z41T明杆楔式闸阀是一种自动阀,它是依靠介质的压力将闸板密封面压向另 一个方向的阀座密封面,使得两个密封面紧密重合从而保障密封效果。明杆楔式闸阀 的闸板可做成一个整体,通常称为刚性闸板;或是改善它的工艺性,从而弥补在加工过 程中出现的偏差,这种闸板称为弹性闸板。


一、Z41T明杆楔式闸阀特点:
  1.结构紧 凑,合理的设计方案,使得阀门的刚性好、通道畅通无阻、介质的阻力小;
  2.密封面的材质选用不锈钢与硬质合金制造而成,使用的寿命长;
  3.结构形 式可分为多种,弹性楔式单闸板或是刚性楔式单闸板双闸板形式等;
  4.选用 柔性的石墨进行填料,密封可靠,操作方便、灵活;
  5.驱动方式可选用手动 、气动、电动、齿轮传动等。

 
二、Z41T明杆楔式闸阀 执行标准:
  设计规范:GB/T 12234
  结构长度:GB/T 12221
  连接法兰:JB/T 79
  试验与检验:JB/T 9092
  压力- 温度:GB/T 9131
  产品标识:GB/T 12220
 
三、 Z41T明杆楔式闸阀主要技术参数:
型号 PN 工作压力/MPa 适用温度/℃ 适用介质
Z41T-10 10 1.0 ≤200 水、蒸汽
Z41W-10 10 1.0 ≤100 油品
 
四、Z41T明杆楔式闸阀主要零件材料:
型号 材料
阀体、阀盖、闸板 阀杆 密封面 填料
Z41T-10 灰铸铁 碳钢 黄铜 油浸石棉填料
Z41W-10 灰铸铁 碳钢 灰铸铁 油浸石棉填料
 
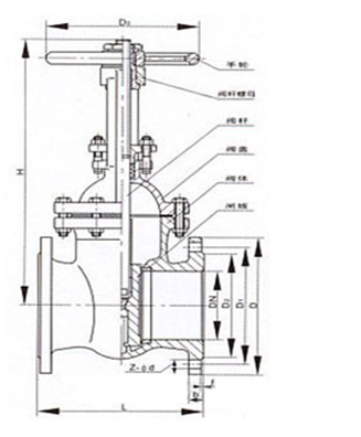
五、Z41T明杆楔式闸阀外形尺寸:
DN L D D1 D2 b H H1 z×Φd D0 重量/kg
50 180 160 125 100 20 286 345 4×Φ18 180 17
65 195 180 145 120 20 331 410 4×Φ18 180 22
80 210 195 160 135 22 375 470 4×Φ18 200 30
100 230 215 180 155 22 430 544 8×Φ18 200 35
125 255 245 210 185 24 523 660 8×Φ18 240 52
150 280 280 240 210 24 592 762 8×Φ23 240 70
200 330 335 295 265 26 772 993 8×Φ23 320 125
250 380 390 350 320 28 903 1176 12×Φ23 320 170
300 420 440 400 368 28 1043 1366 12×Φ23 400 226
350 450 500 460 428 30 1173 1540 16×Φ23 400 360
400 480 565 515 482 32 1245 1765 16×Φ25 500 444
450 510 615 565 532 32 1500 1970 20×Φ25 500 590
500 540 670 620 585 34 1780 2280 20×Φ25 720 740
600 600 780 725 685 36 2010 2620 20×Φ30 720 960
上一个产品:暗杆软密封闸阀
Copyright © 天阀控股bst365权威外围网(官方)网站-网页版web登录入口/手机IOS/Android最新版入口-首页 bst365权威外围网(官方)网站-网页版web登录入口/手机IOS/Android最新版入口-首页    All Rights Reserved.